
Huis
Halfopen
4 slaapkamer(s)
1 badkamer(s)
159 m² woonoppervlakte
429 m² grondoppervlakte
A
Pandcode: 1379042
Beschrijving van het pand
Specificaties
Kenmerken
Algemeen
Woonoppervlakte
159.00m²
Grondoppervlakte
429.00m²
Type oppervlakte
Bruto
Oriëntatie voorgevel
West
Omgeving
Groene omgeving
Residentieel
Nabij openbaar vervoer
Invalswegen
Verwarming
Type
Centrale verwarming
Radiator
Radiatoren
Vloerverwarming
Verwarmingsketel
Verwarmingsmateriaal
Stookolie
Diversen
Schrijnwerk
PVC
Dubbele beglazing
Isolatie
Detailinfo op aanvraag
Warm water
Boiler op CV
Gebouw
Bouwjaar
2023
Lift aanwezig
Nee
Details
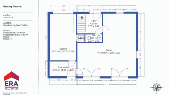
Inkomhal
Toilet
Living
Keuken
Wasplaats
Garage
Terras
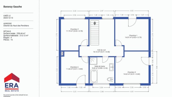
Nachthal
Slaapkamer
Slaapkamer
Slaapkamer
Slaapkamer
Badkamer
Toilet
Zolder
Technische en juridische informatie
Algemeen
Beschermd erfgoed
Nee
Opgenomen in een inventaris van onroerend erfgoed
Nee
Energie en elektriciteit
Elektrische keuring
Keuringsverslag - Conform
Nutsvoorzieningen
Elektriciteit
Regenwaterput
Aansluiting riolering
Stadswater
Elektriciteit modern
EPC-certificaat
Ja
Energielabel
A
E-peil
A
Certificaatnummer
RWPEB-124001
Berekend specifiek energieverbruik
73
CO2-uitstoot
2796.00
Planningsinformatie
Stedenbouwkundige vergunning
Vergunning uitgereikt
Stedenbouwkundige verplichting
Nee
In inventaris van de niet uitgebate bedrijfsruimten
Nee
Voorwerp van rooiplan
Nee
Verkavelingsvergunning uitgereikt
Nee
Voorkoopsrecht ruimtelijke ordening
Nee
Stedelijke bestemming
La zone d'habitat à caractère rural
Overstromingsgebied
Onroerend goed, niet gelegen in een overstromingsgebied
Renovatieverplichting
Niet van toepassing/Non-applicable
In watergevoelig gebied
Niet van toepassing/Non-applicable
Sluiten
