Beschrijving van het pand

In het landelijke Baaigem (Gavere) werden twee stijlvolle halfopen bebouwingen gerealiseerd. Eén woning is
nog beschikbaar, met een bewoonbare oppervlakte van 186m2
Deze woning combineert moderne energiezuinige technieken met een landelijke ligging. Denk aan uitgestrekte vergezichten, groene omliggende velden en prachtige wandelroutes op wandelafstand. En dat op slechts 20 minuten van Gent. Perfect voor wie ruim wil wonen met een vlotte verbinding naar de stad. 
De woning beantwoordt volledig aan de BEN-normen (E-peil 30) en is uitgerust met:
een warmtepomp - ventilatiesysteem D - zonnepanelen
Zo woon je comfortabel, zuinig én toekomstgericht. 
Indeling: 
Via de inkomhal kom je in de lichtrijke leefruimte met grote raampartijen en zicht op de tuin. De open keuken sluit aan op de handige berging, en het ruime terras vangt de avondzon. Ideaal om buiten te genieten. Daarnaast is er een gastentoilet en ruimte voor een vestiaire. 
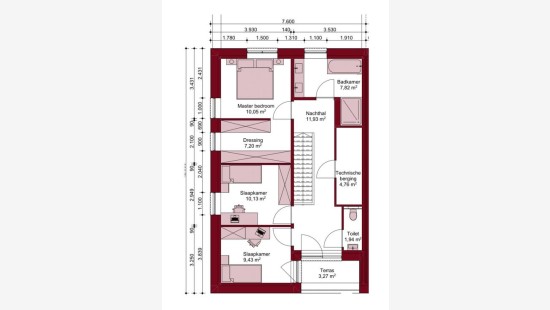
Op de eerste verdieping bevinden zich: een apart gastentoilet, een technische ruimte / berging, een ruime badkamer met zowel bad als inloopdouche, 3 volwaardige slaapkamers, waarvan één met een eigen dressing.
Parkeren doe je zorgeloos aangezien er voldoende plaats is voor de woning. 
Jouw voordelen: 
- 6% BTW (onder voorwaarden)
- vrijstelling van onroerende voorheffing mogelijk
- landelijke ligging met uitstekende bereikbaarheid
- Energiezuinig en onmiddellijk bewoonbaar. 
Zin om deze woning te ontdekken? 
Contacteer vandaag nog jouw ERA nieuwbouwspecialist en plan een bezoek.

Specificaties

Kenmerken

Algemeen

Woonoppervlakte
186.00m²
Grondoppervlakte
399.37m²
Type oppervlakte
Bruto
Omgeving
Groene omgeving
Landelijk

Verwarming

Type
Individuele verwarming
Radiator
Vloerverwarming
Verwarmingsmateriaal
Warmtepomp (lucht)

Diversen

Schrijnwerk
Aluminium
Superisolerend hoogrendementsglas
Isolatie
Dak
Beglazing
Muur
Zie lastenboek
Warm water
Warmtepomp

Gebouw

Bouwjaar
2025
Allerlei
Ventilatie
Lift aanwezig
Nee

Zonnepanelen

Zonnepanelen
Zonnepanelen aanwezig – Inbegrepen in de prijs

Toilet

Berekende oppervlakte
2 m²

Woonkamer

Berekende oppervlakte
39 m²

Keuken

Berekende oppervlakte
22 m²

Berging

Berekende oppervlakte
11 m²

Toilet

Berekende oppervlakte
2 m²

Berging

Berekende oppervlakte
5 m²

Slaapkamer

Berekende oppervlakte
9 m²
1 slaapkamer(s) mogelijk

Slaapkamer

Berekende oppervlakte
10 m²
1 slaapkamer(s) mogelijk

Slaapkamer

Berekende oppervlakte
17 m²
Kamer items
Dressing
1 slaapkamer(s) mogelijk

Badkamer

Berekende oppervlakte
8 m²

Terras

Berekende oppervlakte
22 m²

Algemeen

Beschermd erfgoed
Nee
Opgenomen in een inventaris van onroerend erfgoed
Nee

Energie en elektriciteit

Nutsvoorzieningen
Septische put
Regenwaterput
Aansluiting riolering
Fotovoltaïsche panelen
Elektriciteit modern
Gescheiden rioleringsstelsel
Energielabel
-

Planningsinformatie

Stedenbouwkundige vergunning
Geen vergunning uitgereikt
Stedenbouwkundige verplichting
Nee
In inventaris van de niet uitgebate bedrijfsruimten
Nee
Voorwerp van rooiplan
Nee
Verkavelingsvergunning uitgereikt
Nee
Voorkoopsrecht ruimtelijke ordening
Nee
Overstromingsgebied
Onroerend goed, niet gelegen in een overstromingsgebied
Renovatieverplichting
Niet van toepassing/Non-applicable
In watergevoelig gebied
Niet van toepassing/Non-applicable
Sluiten
Gert Verstuyft
Hundelgemsesteenweg 76 , 9890 Baaigem