Authentique ferme gaumaise 3ch à Chantemelle

À partir de € 400 000

Description du bien

ERA B-LUX vous propose cette authentique ferme de caractère située dans le charmant village de Chantemelle, sur la commune d'Etalle.
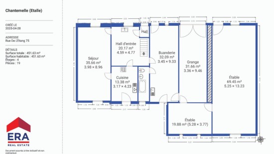
Située sur un terrain de 13 ares 58, cette propriété se compose d'un corps de logis de 3 chambres, d'un grenier aménageable, d'une grange et d'une étable, offrant de nombreuses possibilités d'aménagement : extension ou activité professionnelle.
Ses atouts :

  • Charme préservé : portes en chêne, poutres apparentes

  • Environnement paisible et verdoyant, propice à la quiétude

  • Bâtiment sain, beaux volumes, potentiel incroyable

Caractéristiques techniques :
Chauffage central au mazout, toiture en ardoises naturelles, châssis bois double vitrage, installation électrique simple horaire, raccordement aux égouts.
Une opportunité rare pour les amateurs de belles bâtisses et de projets à personnaliser dans un cadre privilégié.
Intéressé(e) ? Pour plus d'informations ou pour organiser une visite, contactez-nous dès aujourd'hui !

Spécifications

Caractéristiques

Général

Surface habitable
198.00m²
Superficie du terrain
1358.00m²
Type de superficie
Brut
Environnement
Centre
Centre d'habitation
Environnement verdoyant
Rural
A proximité d'écoles
Revenu cadastral net
€416,00

Chauffage

Type
Chauffage central
Radiateurs
Convecteurs
Cassette à bois
Combustible chauffage
Bois
Mazout

Divers

Menuiserie
Bois
Double vitrage
Isolation
Non précisé
Eau chaude
Boiler sur chauffage central

Bâtiment

Année de construction
de 1850 à 1874
Nombre d'étages
2
Divers
Alarme
Stores
Ascenseur disponible
Non

Hall

Salle à manger

Living

Cuisine

Garage

Buanderie

Chambre à coucher

1 chambre(s) possible(s)

Chambre à coucher

1 chambre(s) possible(s)

Chambre à coucher

1 chambre(s) possible(s)

Salle de bains

Général

Patrimoine classé
Non
Repris dans l’inventaire du patrimoine
Non

Énergie et électricité

Inspection électrique
Pas d'application
Raccordements
Electricité
Raccordements aux égouts
Eau de ville
Certificat PEB
Oui
Classe énergétique
E
Niveau E
E
Numéro de certificat
20240509002629
Consommation spécifique d'énergie calculée
407
Emission de CO2
100.00
Consommation totale d'énergie calculée
80531

Information urbanistique

Permis d'urbanisme
Permis non accordé
obligation d'urbanisme
Non
Dans l'inventaire des locaux inexploités
Non
Objet du plan de alignement
Non
Autorisation de lotissement
Non
Droit de préemption
Non
Zone inondable
Bien immobilier situé en zone non inondable
Obligation de rénovation
Niet van toepassing/Non-applicable
En zone sensible à l'eau
Niet van toepassing/Non-applicable
Marie-Laure Nitelet
Rue de l'Etang 75 , 6742 Chantemelle